






|
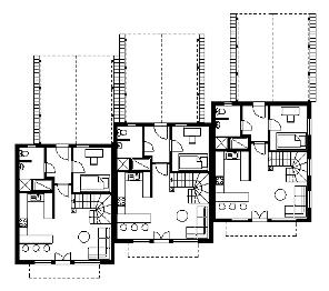
A házak nagypaneles készház technológiával készültek, 95 és 110 négyzetméter közötti alapterületűek, a belső elrendezések az egyéni igények figyelembe vételével került kialakításra. Egypár háznál a tetőcsúcs is ki lett építve, itt egy 16-18 négyzetméter hasznosítható. |
|
A házakat és alaprajzokat bemutató oldalaink külön aloldalakkal bővültek egy aldomain címen, a http://keszhaz.dener.hu lapon. A továbbiakban új alaprajzok erre a címre kerülnek feltöltésre. |

|
Ikerházak és sorházak készház technológiával |